Dedeyan Center at Dora - Beirut

 

  • Parking Spaces (250 cars)
  • 34 Shops (54 to 465 square meters)
  • 12 Showrooms (210 to 600 square meters)
  • 42 Offices (100 to 600 square meters)
  • Independent air conditioning (hot & cold) installed in all the offices.
  • 500kva power available from two generators.
  • The center is insured against flooding, fire and earthquakes.
Second Level basement Parking

Click on photo to enlarge

  • Parking Spaces (109 cars)
 

First Level Basement Parking

Click on photo to enlarge

  • Parking Spaces (40 cars)
  • Storage areas

 

 

Ground Floor

Click on photo to enlarge

  • 34 Shops (54 to 465 square meters)
  • Ground level parking (100 cars)
 

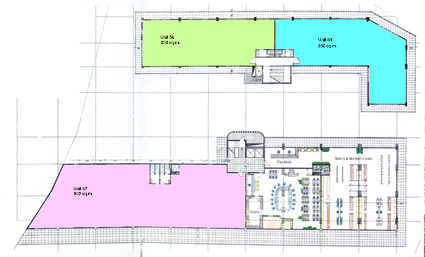
Second Floor

Click on photo to enlarge

 

  • 3 Showrooms are available

    300, 350 and 600 square meters each

 

 

Typical Floor

Click on photo to enlarge

  • 6 offices at 100 square meters each.

Designed as modules of 100 square meters, giving the possibility of office sizes multiples of 100 up to 600 square meters per floor.

 

Seventh Floor

Click on photo to enlarge

  • 600 square meters floor area, suitably designed to accomodate medium to large companies.

 

 

 

 
     


Dedeyan Development Company sarl, Dedeyan Center, 10th Floor, Dora Roundabout, Beirut - Lebanon - 00961-1-260 790